25
$289,900 Sale
Listed 4 hours ago
#421 53414 RGE ROAD 62
· 2
· 1.0
· 0
· 885
Key Facts
Key facts for #421 53414 RGE ROAD 62
Property Type
House, House
Parking
Garage: No, 0 parking
MLS #
E4461396
Size
885 sqft
Basement
None
Listed on
-
Lot size
-
Tax
-
Days on Market
-
Year Built
2024
Maintenance Fee
-
Description
Live the lake life at Sherwood Cove, just off the northwest shores of Isle Lake! This charming 2014 home is completely turn-key—just bring your bags and start enjoying. Inside, you’ll love the bright, open-concept kitchen, dining, and living area that flows seamlessly onto a covered 20’x8’ deck—perf...ect for relaxing or entertaining. Enjoy meals by the bay window overlooking your spacious 0.53-acre yard with lake views. The home features a large primary bedroom, a 4-piece bath, and a comfortable second bedroom. Step outside to a brand-new 24’x16’ deck and savour your morning coffee or evening glass of wine in peace. Sherwood Cove offers scenic walking trails to the lake, a community boat launch, and the option to install your own dock (with approval). Just a short drive to local amenities, schools, and golf courses—this is lakeside living made easy! (id:10452)
Similar Properties (No results)
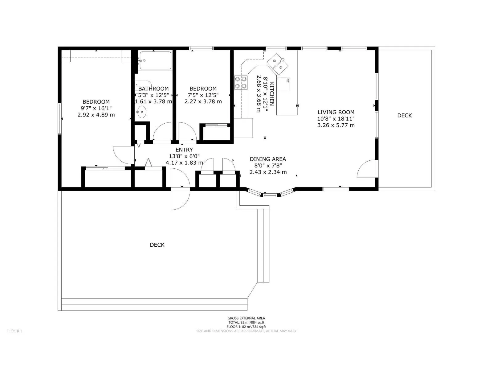
Room Types
Bedroom 2
-
Dimensions 2.27 m x 3.78 m
92.36 sqft
Dining room
-
Dimensions 2.43 m x 2.34 m
61.21 sqft
Kitchen
-
Dimensions 2.68 m x 3.68 m
106.16 sqft
Listing courtesy of: RE/MAX Real Estate
This REALTOR.ca listing content is owned and licensed by REALTOR® members of The Canadian Real Estate Association.